Skip to content
LOOT ArchitectureDesign
Menu
Research
About
Contact
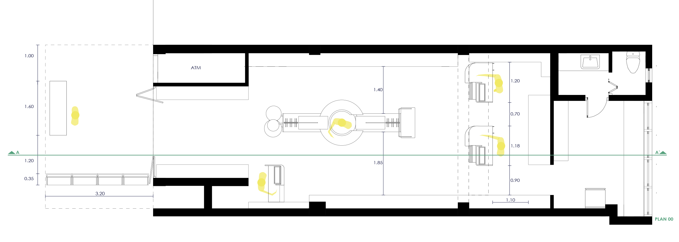
Pharmacy Refurbishment Santorini, 2017
pln_2015-11-15ai-1
0
October 15, 2018
Written by
420stylezz
Post navigation
Pharmacy Refurbishment Santorini, 2017
Previous
Leave a comment
Cancel reply
Δ
Privacy & Cookies: This site uses cookies. By continuing to use this website, you agree to their use.
To find out more, including how to control cookies, see here:
Cookie Policy
Comment
Subscribe
Subscribed
LOOT ArchitectureDesign
Sign me up
Already have a WordPress.com account?
Log in now.
LOOT ArchitectureDesign
Subscribe
Subscribed
Sign up
Log in
Copy shortlink
Report this content
View post in Reader
Manage subscriptions
Collapse this bar